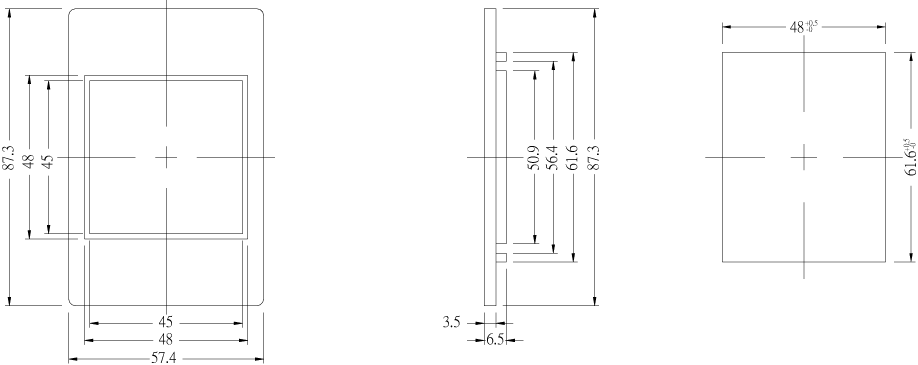
Prev Next Accessories Adapter Y-57 Add to inquiry Inquiry list Description Wiring and timing diagrams Overall dimensions or other Download Y-57 Catalogue